- 雷達液位計料位計系列產品
- 壓力/液位/差壓/密度變送器
- 液位儀表系列
- 流量儀表系列
- 物位儀表系列
- 液位/溫度/壓力/流量-報警儀
- PLC/DCS自動化控制監控系統
- GPRS無線遠傳裝置
- 有紙/無紙記錄儀系列
- 溫度儀表系列
- 分析儀|檢測儀|校驗儀系列
全國銷售熱線:400-9280-163
電話:86 0517-86917118
傳真:86 0517-86899586
銷售經理:1560-1403-222 (丁經理)
??? ? ? ? 139-1518-1149 (袁經理)
業務QQ:2942808253 / 762657048
網址:http://www.ccsso.com.cn
電話:86 0517-86917118
傳真:86 0517-86899586
銷售經理:1560-1403-222 (丁經理)
??? ? ? ? 139-1518-1149 (袁經理)
業務QQ:2942808253 / 762657048
網址:http://www.ccsso.com.cn
溫壓補償技術在金屬管浮子流量計測量中的應用
發表時間:2017-11-18 ??點擊次數:1151? 技術支持:1560-1403-222
一、引言
金屬管浮子流量計(以下簡稱流量計)又稱變面積式流量計或恒壓降式流量計,是以流體流動時的節流原理為基礎的一種流量測量儀表。具有可測量多種介質流量,特別適用于測量中小管徑雷諾數較低的中小流量;壓力損失小且穩定;反映靈敏,量程較寬(10:1),示值清晰,近似線性刻度;結構簡單,價格便宜,使用維護方便;通過選用不同測量管及零部件材質,還可以測量具有腐蝕性的介質流量等特點。基于上述特點,流量計**應用于石油、化工、冶金、制藥、釀造、環保、發電等領域中的流量控制與測量系統。
金屬管浮子流量計根據用戶提供的設計工況參數(如操作溫度、操作壓力、操作密度等)進行用水或氣體流量換算、校準,當現場工況參數與設計工況參數相同或偏離極小時方可進行準確測量。但是現場應用時介質工況參數往往偏離設計參數較大,造成儀表測量準確度嚴重下降,尤其對于氣體介質,由于其操作密度受壓力、溫度影響較大,儀表測量準確度下降尤其嚴重。為解決此問題,一般采取重新采購、加工儀表的措施,增加了成本,影響了正常開車生產。因此,如何提供一種金屬管浮子流量計,適應現場工藝參數偏離設計參數的情況下,保證現場應用時不會造成儀表測量準確度下降,是本領域技術人員目前需要迫切解決的技術問題。金屬管浮子流量計的溫壓補償技術應用溫壓補償算法,對儀表采集到的流量信號、溫度信號、壓力信號進行溫度壓力補償綜合計算,實現準確測量,很大程度上解決了上述問題。

圖1 金屬管浮子流量計工作原理圖
二、溫壓補償算法
流量計在測量氣體介質時,當氣體溫度、壓力不穩定,造成被測氣體工況密度變化較大時,流量指示誤差增大,此時應進行溫度壓力補償計算,恢復儀表測量的準確性。具體推導、計算如下:
2.1 工況體積流量:

三、溫壓補償技術
由溫壓補償算法推導可知,當實際被測氣體介質工作狀態發生變化時(即壓力P、溫度T偏離設計)通過采集氣體介質的壓力、溫度信號,通過公式(5)、(6)、(7)、(8)計算,即可實現溫

圖2 分體式溫壓補償型
流量計結構示意圖
度壓力在線實時補償計算,得到準確的流量信號,此即為金屬管浮子流量計溫壓補償技術。
四、溫壓補償型金屬管浮子流量計結構組成、特點及應用
4.1 分體式結構
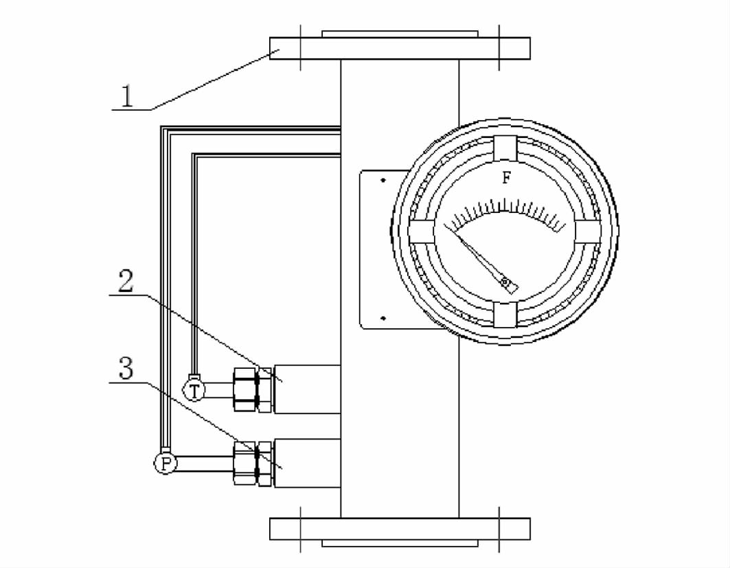
流量計、溫度變送器、壓力變送器單獨安裝,流量信號、溫度信號、壓力信號分別輸入DCS或控制計算器進行流量的溫度、壓力補償計算,完成流量、壓力、溫度各參數的顯示、輸出、打印等功能。此種結構安裝靈活,特別適用于現場流量計的升級改造,如圖2所示。號、溫度信號、壓力信號輸入到溫壓補償功能設計的流量計轉換器中,進行流量的溫度、壓力補償計算,完成流量、壓力、溫度各參數的顯示、輸出、打印等功能。此種結構測量準確度高,體積小,安裝方便,如圖3所示:

圖3 一體式溫壓補償型流量計結構示意圖
1、金屬管浮子流量計2、溫度傳感器3、壓力傳感器金屬管浮子流量計由傳感器(包括法蘭、測量管、上導向器、浮子、錐管或孔板、下導向器、連接支架、連接螺釘等)和溫壓補償型指示器及其內部零部件等構成。
五、結束語
金屬管浮子流量計溫壓補償技術的發展、應用,實現了溫度壓力在線實時補償計算,提高了流量計的測量準確度,降低用戶的開車、維護成本。隨著微電子技術的發展,溫度、壓力傳感器結構的微型化,一體式溫壓補償型流量計必然成為金屬管浮子流量計溫壓補償技術分發展的趨勢。在越來越重視節約能源,精確測量控制的社會大環境下,溫壓補償技術也必將得到**的應用。
上一條:渦街流量計等流量儀表在測量極低溫液體時影響因素分析
下一條:煤化工企業生產中雷達液位計在的應用案例分析
金屬管浮子流量計(以下簡稱流量計)又稱變面積式流量計或恒壓降式流量計,是以流體流動時的節流原理為基礎的一種流量測量儀表。具有可測量多種介質流量,特別適用于測量中小管徑雷諾數較低的中小流量;壓力損失小且穩定;反映靈敏,量程較寬(10:1),示值清晰,近似線性刻度;結構簡單,價格便宜,使用維護方便;通過選用不同測量管及零部件材質,還可以測量具有腐蝕性的介質流量等特點。基于上述特點,流量計**應用于石油、化工、冶金、制藥、釀造、環保、發電等領域中的流量控制與測量系統。
金屬管浮子流量計根據用戶提供的設計工況參數(如操作溫度、操作壓力、操作密度等)進行用水或氣體流量換算、校準,當現場工況參數與設計工況參數相同或偏離極小時方可進行準確測量。但是現場應用時介質工況參數往往偏離設計參數較大,造成儀表測量準確度嚴重下降,尤其對于氣體介質,由于其操作密度受壓力、溫度影響較大,儀表測量準確度下降尤其嚴重。為解決此問題,一般采取重新采購、加工儀表的措施,增加了成本,影響了正常開車生產。因此,如何提供一種金屬管浮子流量計,適應現場工藝參數偏離設計參數的情況下,保證現場應用時不會造成儀表測量準確度下降,是本領域技術人員目前需要迫切解決的技術問題。金屬管浮子流量計的溫壓補償技術應用溫壓補償算法,對儀表采集到的流量信號、溫度信號、壓力信號進行溫度壓力補償綜合計算,實現準確測量,很大程度上解決了上述問題。
一、工作原理
流量計工作原理如圖1所示:
流量計垂直安裝在管道上,流體自下向上流經錐管,浮子在P1、P2差壓作用下產生上升或下移,當浮子此差壓(P2-P1)與浮子重力G、浮力F、粘滯力合力平衡時,處于平衡狀態。建立方程并推導(可參考相關**資料,此處省略),忽略粘滯力影響,假設流量系數為常數,可得出浮子位移與流量成線性對應關系。浮子流量計的流量方程為:



圖1 金屬管浮子流量計工作原理圖
二、溫壓補償算法
流量計在測量氣體介質時,當氣體溫度、壓力不穩定,造成被測氣體工況密度變化較大時,流量指示誤差增大,此時應進行溫度壓力補償計算,恢復儀表測量的準確性。具體推導、計算如下:
2.1 工況體積流量:

三、溫壓補償技術
由溫壓補償算法推導可知,當實際被測氣體介質工作狀態發生變化時(即壓力P、溫度T偏離設計)通過采集氣體介質的壓力、溫度信號,通過公式(5)、(6)、(7)、(8)計算,即可實現溫

圖2 分體式溫壓補償型
流量計結構示意圖
度壓力在線實時補償計算,得到準確的流量信號,此即為金屬管浮子流量計溫壓補償技術。
四、溫壓補償型金屬管浮子流量計結構組成、特點及應用
4.1 分體式結構
流量計、溫度變送器、壓力變送器單獨安裝,流量信號、溫度信號、壓力信號分別輸入DCS或控制計算器進行流量的溫度、壓力補償計算,完成流量、壓力、溫度各參數的顯示、輸出、打印等功能。此種結構安裝靈活,特別適用于現場流量計的升級改造,如圖2所示。號、溫度信號、壓力信號輸入到溫壓補償功能設計的流量計轉換器中,進行流量的溫度、壓力補償計算,完成流量、壓力、溫度各參數的顯示、輸出、打印等功能。此種結構測量準確度高,體積小,安裝方便,如圖3所示:

圖3 一體式溫壓補償型流量計結構示意圖
1、金屬管浮子流量計2、溫度傳感器3、壓力傳感器金屬管浮子流量計由傳感器(包括法蘭、測量管、上導向器、浮子、錐管或孔板、下導向器、連接支架、連接螺釘等)和溫壓補償型指示器及其內部零部件等構成。
五、結束語
金屬管浮子流量計溫壓補償技術的發展、應用,實現了溫度壓力在線實時補償計算,提高了流量計的測量準確度,降低用戶的開車、維護成本。隨著微電子技術的發展,溫度、壓力傳感器結構的微型化,一體式溫壓補償型流量計必然成為金屬管浮子流量計溫壓補償技術分發展的趨勢。在越來越重視節約能源,精確測量控制的社會大環境下,溫壓補償技術也必將得到**的應用。
上一條:渦街流量計等流量儀表在測量極低溫液體時影響因素分析
下一條:煤化工企業生產中雷達液位計在的應用案例分析
- 相關文章
-
- 80G 高頻雷達物位計液位計適用于泡沫和攪拌工況的原因分析 【2025-08-06】
- 80G高頻雷達液位計防腐防爆耐高溫的功能是如何實現的? 【2025-07-23】
- 高頻雷達液位計在石油行業液位測量應用中的優勢有哪些 【2025-07-17】
- 雷達液位計測量時如何有效規避攪拌葉片和泡沫的干擾? 【2025-07-07】
- 氣體渦輪流量計與其他類型的燃氣流量計特性對比 【2016-02-15】
- 孔板流量計應用于天然氣計量時的誤差分析 【2016-04-02】
- 工業硝酸銨溶液貯罐液位測量中對于液位計的選型分析(下) 【2017-04-19】
- 簡述電容式壓力變送器設計原理及元器件構成形式 【2015-05-16】
- 磁翻板液位計失靈的具體表現有哪些及對于失靈情況的歸納與分析 【2016-10-16】
- 一體化傳感器的工作原理及其測量技術在現代工業制造中的意義 【2015-05-19】








